г. Нижний Новгород,
ул. Маршала Казакова, д.3а

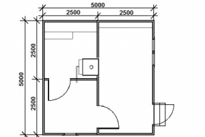
Баня каркасная 5х5 с крыльцом К012

Описание
Стандартная планировка парной и предбанника. Возможно различное расположение окон и дверей по желанию Заказчика.
Внутренние размеры помещений 4,85 х 2,4 м (предбанник)
  2,4 х 2,4 м (парная, моечное отделение)
Высота потолков 2,0 м
Площадь парной ~5,5 м2
Объём парного помещения ~11 м3
Печь банная дровяная Радуга ПБ-11Б (топка из парного отделения)
  Радуга ПБ-24Б (топка из смежного помещения)
Бак для воды 45 л, нержавеющая сталь
Время нагрева парной до 100С летом – 30-60 минут
  зимой – 1,5-2 часа
Сезонность использования Стандартная комплектация до -10С
  Зимняя комплектация до -30С

 

Комплектация

Комплектация

Эконом

Стандартная 

Зимняя

Цена с 01.03.2025

620 000=

717 000=

814 000=

Фундамент

опорно-блочный

Блоки бетонные 200х250х400мм

Блоки бетонные 200х250х400мм

Блоки бетонные 200х250х400мм

Несущие конструкции

брус хвойный

Основание – брус 100х120мм, 100х170мм

Стены 50х50мм

Перекрытия 50х100мм

Основание – брус 100х120мм, 100х170мм

Стены 50х50мм

Перекрытия 50х100мм

Основание – брус 100х170мм

Стены 50х100мм

Перекрытия 50х100мм

Антисептирование основания 

нет

ХМ-11 ГОСТ 23787.8‑80

ХМ-11 ГОСТ 23787.8‑80

Внешняя отделка 

Вагонка хвойная

2-3 сорт

Вагонка хвойная

1-2 сорт

Вагонка хвойная

1-2 сорт

Утепление

 

Isover рулон 50мм стены и потолки в парной и мойке

предбанник без утепления

Knauf плита 50мм стены и потолки в парной и мойке

предбанник без утепления

Knauf плита 100мм стены и потолки в парной, мойке и предбаннике

Внутренняя отделка 

предбанник и мойка

Вагонка хвойная

2-3 сорт

Вагонка хвойная

1-2 сорт

Вагонка хвойная

1-2 сорт

Ветро-влагозащита внешняя 

Мембранная

Ардманол А

Мембранная

Ардманол А

Мембранная

Ардманол А

Внутренняя отделка парной

Вагонка хвойная

2-3 сорт

Вагонка осиновая

1-2 сорт

Вагонка осиновая

1-2 сорт

Пароизоляция парной 

Фольга на бумажной основе

Фольга алюминиевая

Фольга алюминиевая

Полати 500мм и приступок 300мм

нет

Полок липа 25х90мм

1-2 сорт

Полок липа 25х90мм

1-2 сорт

Лавка в предбаннике 300мм 

нет

Доска строганная хвойная 45х140мм, 

1-2 сорт

Доска строганная хвойная 45х140мм, 

1-2 сорт

Полы 

Доска шпунтованная хвойная 28х135мм

2-3 сорт

Доска шпунтованная хвойная 36х135мм

1-2 сорт

Доска шпунтованная хвойная 36х135мм

1-2 сорт

Кровля  

Профнастил оцинкованный

Профнастил оцинкованный

Профнастил оцинкованный

Печь банная 

Радуга ПБ-11Б

Радуга ПБ-11Б

Радуга ПБ-11Б

Камни для каменки 

нет

40кг

40кг

Бак для воды 

Навесной, 45 литров нержавеющая сталь

Навесной, 45 литров нержавеющая сталь

Навесной, 45 литров нержавеющая сталь

Дымоход 

Одноконтурный нержавеющая сталь 1мм, задвижка, оцинкованный кожух, проходная разделка, зонтик

Двухконтурный нержавеющая сталь 1мм, задвижка, оцинкованный кожух, проходная разделка, зонтик

Двухконтурный нержавеющая сталь 1мм, задвижка, оцинкованный кожух, проходная разделка, зонтик

Противопожарное обустройство 

Подставка под печь, покрытая оцинкованным листом, стены и потолок - базальтовые листы, проходка потолка - сэндвич труба с базальтовым наполнителем, перед топкой оцинкованный лист.

Подставка под печь, покрытая оцинкованным листом, стены и потолок - базальтовые листы, проходка потолка - сэндвич труба с базальтовым наполнителем, перед топкой оцинкованный лист.

Подставка под печь, покрытая оцинкованным листом, стены и потолок - базальтовые листы, проходка потолка - сэндвич труба с базальтовым наполнителем, перед топкой оцинкованный лист.

Окна 

400х300мм глухие

400х300мм глухие

400х300мм глухие

Двери 

Банные игольчатые,

в парной каркасная хвойная, 700х1700мм

Банные игольчатые,

в парной каркасная осиновая, 700х1700мм

Банные игольчатые,

в парной каркасная осиновая 700х1700мм

Козырёк 

нет

1х1,2м покрыт аналогично кровле

1х1,2м покрыт аналогично кровле

Отзывы

Full 17 1 028 5  5
Full 17 1 079 5 5  5 5
24 2 23 2,5х4,5 с вер.2х4,5
24 2 27 3х5 с вер.2х5
24 2 7 2,5х4 с вер.2х4

Наши работы
BPK-03092020-01
BPK-03092020-01
BPK-03092020-01
BPK-03092020-01
BPK-03092020-01
BPK-03092020-
BPK-03092020-02
BPK-03092020-02
BPK-03092020-
BPK-03092020-03
BPK-03092020-03
BPK-03092020-03
BPK-03092020-
BPK-03092020-04
BPK-03092020-04
BPK-03092020-04
BPK-03092020-04
BPK-03092020-04
BPK-03092020-04
BPK-03092020-04
Похожие проекты
Copyright MAXXmarketing GmbH
JoomShopping Download & Support

+7 (831) 423-09-50

+7 (920) 006-45-23

Не можете выбрать или хотите индивидуальный проект? Ответим на все Ваши вопросы!

Принимаем заказы на срубы из оцилиндрованного бревна, бруса и срубы ручной рубки. Зимний северный лес 2024-2025г